|
| |
N / A
Yumi steel
72104900 / 73089000
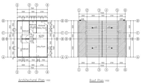
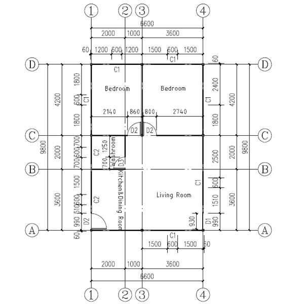
1.Diseño a partir de 2016:
Los siguientes diseños son los que hicimos para el cliente, de acuerdo con sus requisitos. Nuestro equipo de ingenieros siguió la solicitud del cliente y diseñó, revisó y elaboró los diseños finales para el cliente.
2.Envío en 2017 a 2018:
El envío se realizó de 2017 a 2018, de acuerdo con el cronograma de construcción del cliente.
Los materiales incluyeron:
C correas/ Cerchas de techo /Paneles sándwich EPS/Techo de acero corrugado/ Accesorios relacionados / Ventanas y puertas, etc.
Todos los materiales están basados en nuestros diseños.
3. ¿Qué podemos hacer por usted?
☆Cuando planee comprar casas de acero (villas de acero livianas o casas prefabricadas), puede ofrecernos el tamaño de la casa y mencionar los requisitos de función de su casa. Por supuesto, nuestro vendedor lo guiará para estos detalles y lo enviará a nuestro equipo de ingenieros para el diseño de la casa ;
☆Durante el diseño, nuestro ingeniero considerará su solicitud de función y el clima local, y le aconsejará sobre el material adecuado. Y harán una lista de materiales y un diseño juntos para los clientes & # 39; confirmación;
☆Cuando se confirma el diseño final y la lista de materiales, nuestro vendedor cotizará en consecuencia y negociará con los clientes;
☆Cuando se confirma la lista de precios, entonces podemos proceder a la producción;
☆Para las ventas posteriores, cuando ocurriera cualquier problema de instalación o calidad, no dude en ponerse en contacto con nuestro vendedor, harán todo lo posible para apoyar su trabajo. Para enviar personas al sitio o preguntar a otros clientes locales & # 39; soporte para ir al sitio y apoyar su trabajo.
1.Diseño a partir de 2016:
Los siguientes diseños son los que hicimos para el cliente, de acuerdo con sus requisitos. Nuestro equipo de ingenieros siguió la solicitud del cliente y diseñó, revisó y elaboró los diseños finales para el cliente.
2.Envío en 2017 a 2018:
El envío se realizó de 2017 a 2018, de acuerdo con el cronograma de construcción del cliente.
Los materiales incluyeron:
C correas/ Cerchas de techo /Paneles sándwich EPS/Techo de acero corrugado/ Accesorios relacionados / Ventanas y puertas, etc.
Todos los materiales están basados en nuestros diseños.
3. ¿Qué podemos hacer por usted?
☆Cuando planee comprar casas de acero (villas de acero livianas o casas prefabricadas), puede ofrecernos el tamaño de la casa y mencionar los requisitos de función de su casa. Por supuesto, nuestro vendedor lo guiará para estos detalles y lo enviará a nuestro equipo de ingenieros para el diseño de la casa ;
☆Durante el diseño, nuestro ingeniero considerará su solicitud de función y el clima local, y le aconsejará sobre el material adecuado. Y harán una lista de materiales y un diseño juntos para los clientes & # 39; confirmación;
☆Cuando se confirma el diseño final y la lista de materiales, nuestro vendedor cotizará en consecuencia y negociará con los clientes;
☆Cuando se confirma la lista de precios, entonces podemos proceder a la producción;
☆Para las ventas posteriores, cuando ocurriera cualquier problema de instalación o calidad, no dude en ponerse en contacto con nuestro vendedor, harán todo lo posible para apoyar su trabajo. Para enviar personas al sitio o preguntar a otros clientes locales & # 39; soporte para ir al sitio y apoyar su trabajo.
| | Dirección:Unidad 1304-3, Edificio 59, Chengyi North Street, Fase III, Xiamen Software Park, Xiamen, China |
| | Soporte personalizado y ventas: + 86-592-6095031 |
| | Horas de trabajo:Lun-sab: 08 : 00-18 : 00 |
| |